A World of Constructivists.
Facts: University Project at the ETH Zürich | Chair Markus Peter & Peter Märkli | 2003.
Architecture: Wolfgang Rossbauer.
To
design a „new” type of embassy in a Post-Soviet country
is an exceptional task - geographically and culturally far away,
without any chances to be realized. The utopy of the task allows for, even demands a closer
examination into the limits of architecture. The project attempts
to launch „new” programmatic ideas to a specific,
visionary end.
The
embassy is designed as a functional body, representing a platform
which can be used in many ways, and serving the purposes of contemporary
diplomacy. The ambassador is not the dominant figure at the end
of a hierarchical chain, but plays a specific role, enmeshed in
a complex network of relationships.
Bishkek
is a city with notably great and dense tree population. It appealed
to me to seek an architecture which would endorse a dialogue with
the trees, with reference to scale and spatial dimension. Although
the building bears an imposing volumetric presence on its location,
its impact is nevertheless restrained by the surrounding woods.
This prevents it from assuming dominance over its neighbourhood.

In
opposition to the diverse, loosely structured urban setting, the
building is a highly-concentrated construct; an extraterritorial
world following its own set of laws. The ground plan has a constraining
4x4 m supporting structure as its constant spatial reference.
All three meeting rooms and the hall impact the viewer, by deviating
from the strict grid plan with their supporting columns not narrowly
spaced as in all other rooms. The space which ensues has a liberating
effect. The generous surface area and height of these rooms, as
well as their positioning at treetop height, lends them their
opulent character.
The
outdoor public space feeds into the building through its entry
points, that is, from the outside into the softly rounded inner
space. The flow then leads via the reception area, veering towards
both the café and the ambassador’s entrance, finally
reaching the events hall on the second floor. The hall can also
be entered privately via spiral staircases, which descend from
the upstairs flats like a „boreholes” into the lounge-like
meeting rooms. These rooms are thus transformed into ulterior
living-rooms. All staff and technical areas are located in the
heart of the building. Beginning with the delivery point on the
ground floor, they run through the „middle” of the
first floor. The central location of these areas enables services
to be efficiently and promptly provided. These designated areas
occupy a space but remain hidden from view. Their presence can
nevertheless be felt by the impression they leave on the public
areas of the embassy.
All
visible supporting columns are employed to generate space. They
accompany the ascent into the hall, for example, and separate
the staircase in a subtle manner. The playful distribution of
the columns by the stairs causes them to partially lose their
static function. The steel construction with its thin, vertical
bar elements evokes a surreal-like reinforcment. The façade
supports are attached to the building by consoles, and remain
on the exterior. This tectonic composition endows the building
with a „Constructivist” expressive physiognomy.

3rd
Floor (Apartments)

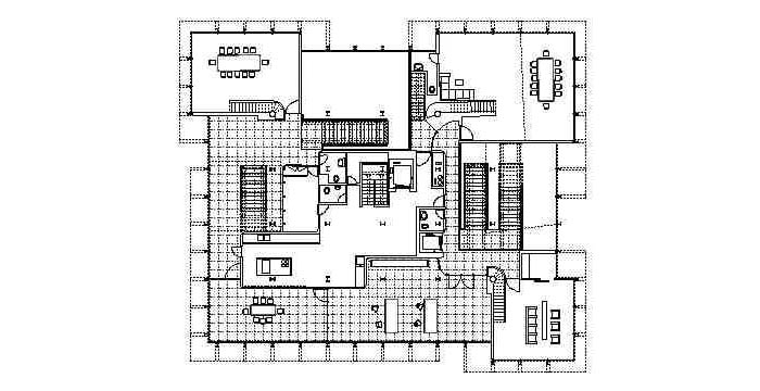
2nd
Floor (Event Hall)

1st
Floor (Meeting Rooms, Offices, Technical Rooms)


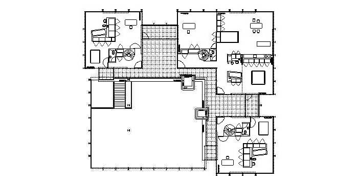
Ground
Floor (Vestibule, Cafeteria, Offices, Delivery Access)




|